Property Type
1984
Year Built
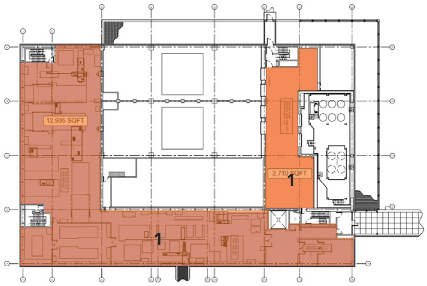
58,726
Available SF
Details
Zoning
Industrial
Parcel ID
141.18-8-35
Minimum Divisible
7,884 SF
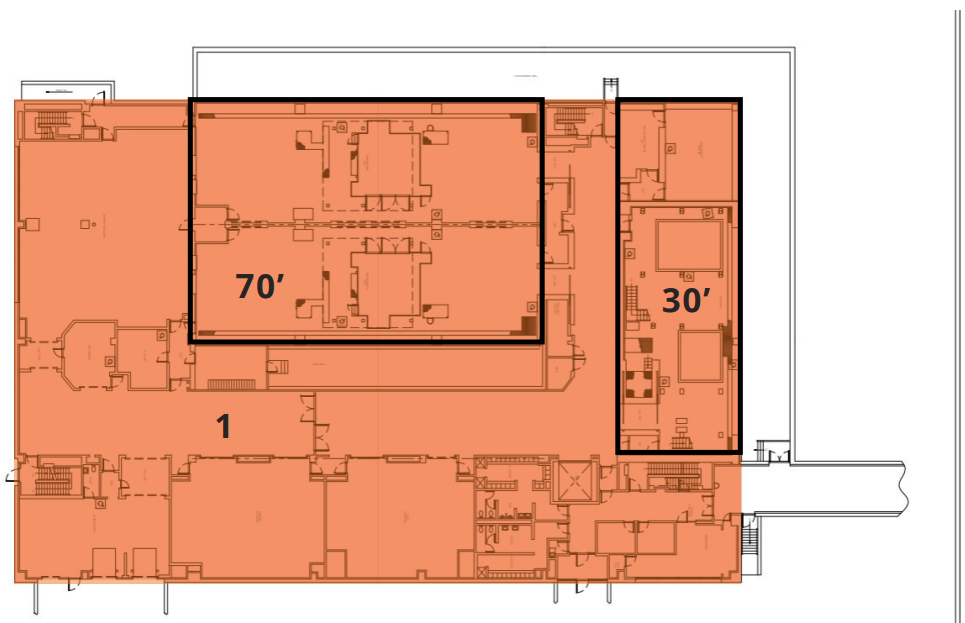
Clear Height
30’ & 70’ Clear Heights Available
Power
5 MVA | 277/480V | 3 Phase
Dock Doors
2
Drive-In Doors
1
Cranes
Multiple Cranes, 1-ton Capacity
Construction
Modern Steel & Concrete Heavy Industrial Construction
Additional Features
Lab Space, Steam Chilled Water & Compressed Air Available















