Property Type
1970
Year Built
271,172
Available SF
49.66 AC
Land Area
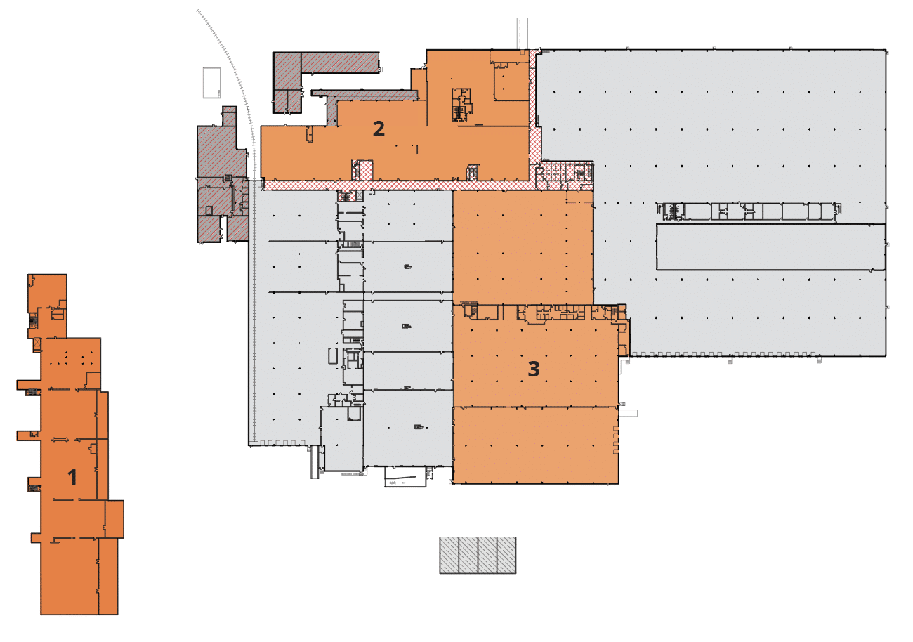
Details
Zoning
I-3: Heavy Industrial
Stories
2
Year Renovated
Renovated Multiple Times
Upper Level Warehouse Space
175,019 SF
Lower Level Warehouse Space
56,855 SF
Office Space
39,298 SF
Minimum Divisible
39,298 SF
Clear Height
18’, 22’, 24’, 32’, PRA 58’, 14’ Basement
Column Width/Depth
40’ x 40’ x 40’ x 60’ | 20’ x 20’
Floors
Mainly Reinforced Concrete; Offices Tiled and Carpeted
Walls
Concrete, Cinder Block, & Insulated Metal
Roof
Tar & Gravel | Single Ply & Metal
Lighting
Fluorescent Lighting T-12, T-8, and T-5 and Mercury Vapor Lighting on Parking Lot
Power
Power Capacity of 13,200 Volts, 8 Megawatts
Fire Safety
100% Wet
Dock Doors
32
Drive-In Doors
8
Rail Access
Two Rail Spurs with Interior Loading; 6-Car Capacity; Rail Provider: Norfolk Southern
Elevators
1
Parking
532 Vehicle Parking Spots throughout the Property; 62 Slots for Trailer Parking/Slotting

















